Изучение программы для проектирования ArchiCAD |
Что я получу от обучения?
- Более 5 часов обучающего видео
- Знание программы ArchiCAD
- Навыки и умения для быстрого создания планировок
- Результат уже через неделю занятий
- Понимание основ проектирования и оформления чертежей
- Консультацию с практикующим архитектором
Для кого это обучение?
- Заказчиков
- Дизайнеров
- Строителей
- Инженеров
- Желающих изменить сферу деятельности и расширить свои знания
Что я получу в итоге?
А есть список видеоуроков?
- Вводный урок по ArchiCAD (46 минут)
- Особенности работы с чертежами в ArchiCAD (60 минут) + подробная инструкция
- Инструменты построения стен, редактирование контуров и настройка рабочей среды (46 минут) + подробная инструкция
- Библиотеки ArchiCAD (52 минуты) + подробная инструкция
- Линии и размеры (52 минуты) + подробная инструкция
- Оформление чертежей в 2Д-окне и вывод на печать (32 минуты)
- Разбор домашнего задания одного из учеников (36 минут)
Это обучение, по-моему убеждению, открывает широкие возможности для развития и творчества, а программа ArchiCAD — сказка (для тех, кто понимает)! Спасибо Вам огромное, Виталий!
Елена Костюкова, г.
Белоярский, ХМАО-Югра
Никогда не имея опыта работы в программах для проектирования домов, тем более не работая в сфере строительства, я быстро освоил эти программы, благодаря Виталию.
Андрей Кузнечиков, г. Москва
В чем основные достоинства обучения?
Только самое важное из ArchiCAD
Результаты уже после нескольких дней
Видеоуроки в студийном качестве
Обучение с «полного нуля»
Уникальная авторская методика
Кто ведет обучение?
- Виталий Злобин.
- Человек, связавший свою жизнь с загородной архитектурой.
- Автор и ведущий курсов и тренингов по проектированию загородных домов.
- Руководитель проектно-строительной организации HOMESPRO:
И как все это выглядит?
Каждый урок — это запись экрана и голоса преподавателя. Формат воспроизведения — видео на канале Youtube. После каждого урока выдается домашнее задание. В результате последовательного выполнения всех домашних заданий Вы гарантировано получите свои чертежи планировок загородного дома.
Вот несколько примеров уроков в записи:
Что дальше?
Если у Вас еще остались сомнения — читайте ПОЛНОЕ описание 1-го этапа по этой ссылке.
Если Вам все нравится — проходите по этой ссылке и выбирайте нужную Вам программу обучения.
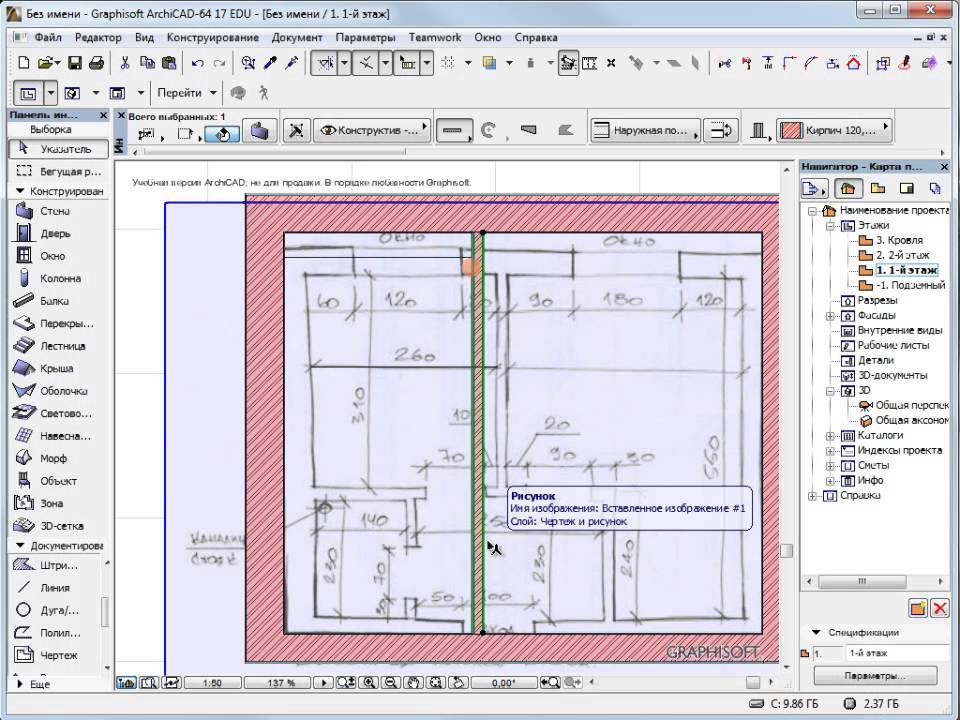
Интерфейс ArchiCAD — СтройМетПроект
Для того чтобы приступить к изучению ArchiCAD, для начала откроем файл примера проекта. Запустим программу ArchiCAD, щелкнув мышью на значке приложения. В открывшемся диалоговом окне мы можем выбрать создание нового проекта или работу с уже существующим файлом.
Для того чтобы выбрать последний вариант, необходимо установить переключатель в положение “Открыть проект”. Затем во второй части диалога выберем “Найти индивидуальный проект”. Выберем “Стандартный профиль 17” в выпадающем списке Установки Окружающей среды и жмём на кнопку “Найти”.
В диалоге обозревателя укажем и откроем файл проекта NHS Office 17.pla, находящийся в папке, в которую был распакован zip-архив.
Если у вас установлена Учебная версия ArchiCAD 17, тогда появится сообщение, предупреждающее о необходимости преобразовать проект в формат EDU.
Нажмите кнопку “Преобразовать в EDU”. Поскольку мы открываем так называемый архивный проект, содержащий все внешние элементы, использованные при создании проекта, появится диалоговое окно, запрашивающее вариант использования этих элементов. В данный момент не будем обращать на него внимания и оставим все элементы проекта в архивном файле; для чего, не изменяя положения переключателя, просто нажмем на кнопку “Открыть”.
Файл проекта открыт. Давайте взглянем поближе на интерфейс ArchiCAD. Эта программа была создана архитекторами и для архитекторов. Легкодоступный для понимания графический интерфейс, сопровождаемый визуальной обратной связью, поможет вам быстро ознакомиться с возможностями программы.
В центре окна отображается План этажа нашего проекта. Внизу экрана расположен набор пиктограмм, управляющих навигацией в этом виде, установкой масштаба и уровнем увеличения.
Панель инструментов
Находящаяся слева Панель инструментов содержит все инструменты, необходимые для построения 3D-модели и создания документации.
Навигатор
В расположенном справа Навигаторе представлены списки всех представлений проекта – здесь мы можем перемещаться между этажами и различными 3D-видами, разрезами, фасадами и деталями.
Линейка меню
На самом верху расположена Линейка меню, содержащая все доступные, логически сгруппированные, команды. В меню Файл, Редактирование и Вид располагаются относящиеся к ним команды и функции. Так как Конструирование и Документирование являются отдельными этапами архитектурного процесса, относящиеся к ним инструменты и команды также располагаются в отдельных меню. При помощи команд меню Параметры осуществляется доступ к основным настройкам и управлению Окружающей средой.
Стандартное табло
В Стандартном Табло команд расположены некоторые команды и функции, доступные и из меню. Оно находится прямо под Линейкой меню. Состав команд этого табло можно полностью перенастраивать. (Все настройки интерфейса, отвечающие конкретным потребностям пользователя, можно сохранять в виде так называемых схем, но описание этой возможности выходит за рамки данного учебного пособия).
Информационном таблоВ Информационном табло отображаются текущие настройки активного инструмента или характеристики выбранного элемента. (Попробуйте выбрать различные инструменты, представленные в Панели инструментов и посмотрите на изменения, происходящие в Информационном табло.) Любые изменения, осуществляемые через Информационное табло, незамедлительно отражаются на текущих параметрах или реквизитах присутствующего в выборке элемента.
Источник данного материала: www.graphisoft.ru
Полная версия ArchiCAD — BIM Professional
Что такое ArchiCAD?
ArchiCAD — это архитектурный программный инструмент BIM CAD, разработанный Graphisoft. Он предлагает специализированные решения для обработки всех общих эстетических и инженерных аспектов в течение всего процесса проектирования застроенной среды — зданий, интерьеров, городских территорий и т. д.
ArchiCAD признан первым продуктом САПР на персональном компьютере, способным создавать как 2D-чертежи и параметрическая 3D-геометрия. Сторонние поставщики и производители архитектурных продуктов собрали библиотеки архитектурных компонентов для использования в ArchiCAD. Программа включает язык геометрического описания (GDL), используемый для создания новых компонентов.
Различные бесплатные и коммерческие дополнительные продукты и расширения добавляют дополнительные функциональные возможности ArchiCAD или обеспечивают дополнительные возможности обмена данными с другими программными приложениями.
ArchiCAD представляет комплексную экосистему решений, упрощающих создание, совместное использование и поиск пользовательских компонентов BIM.
Зачем учиться?
ArchiCAD — это полный набор инструментов для проектирования с 2D- и 3D-черчением, визуализацией и другими функциями для архитекторов, дизайнеров и планировщиков. Изучая ArchiCAD, вы освоите широкий спектр программных приложений, которые удовлетворят большинство потребностей архитектурного бюро, таких как:
2D CAD — инструменты для создания точных и подробных технических чертежей.
3D-моделирование — интерфейс 3D-САПР, специально разработанный для архитекторов, способных создавать различные формы зданий.
Программное обеспечение для архитектурного рендеринга и визуализации — высокопроизводительный инструмент рендеринга для создания фотореалистичных изображений или видео.
Настольная издательская система — с функциями, аналогичными основному программному обеспечению DTP, для составления печатных материалов с использованием технических чертежей, изображений и текстов на основе пикселей.

Управление документами — центральный сервер хранения данных с удаленным доступом, инструмент управления версиями с функциями резервного копирования и восстановления подход к проектированию зданий под названием BIM
Цели обучения Обложка: —
Суэйлен, мы поможем вам освоить следующие возможности ArchiCAD:
Функция ArchiCAD MORPH позволяет создавать элементы с любой пользовательской геометрией интуитивно понятным графическим способом с использованием популярных методов моделирования. Инструмент MORPH — это оптимальное решение для создания пользовательских компонентов BIM, пользовательских конструкций и пользовательских элементов искусственной среды, а также индивидуально разработанных интерьеров зданий.
Новые возможности моделирования ArchiCAD, связанные с облачной базой данных компонентов BIM, которая позволяет создавать, искать, загружать и загружать пользовательские компоненты BIM по вашему выбору.

Встроенная в ArchiCAD функция оценки энергопотребления позволяет архитекторам выполнять надежную динамическую оценку энергопотребления своей модели BIM в ArchiCAD, опираясь на анализ геометрии BIM и точные почасовые онлайн-данные о погоде в месте расположения здания.
Новые функции рабочих процессов и производительности 3D-редактирования ArchiCAD.
Результат обучения
Вы научитесь работать с параметрическими объектами с расширенными данными, которые пользователи часто называют «умными объектами».
Вы научитесь создавать «виртуальное здание» с виртуальными структурными элементами, такими как стены, плиты, крыши, двери, окна и мебель; и используйте большое количество предварительно разработанных, настраиваемых объектов, которые поставляются с программой.
Вы будете знать, как работать с 2D или 3D представлением на экране; экспорт двухмерных чертежей.
Вы узнаете, как создавать планы, фасады и разрезы из трехмерной виртуальной модели здания и вносить изменения.

Голы
- Открытие и навигация по проекту ArchiCAD
- Настройка рабочих единиц и истории
- Импорт рисунков
- Моделирование стены, плиты, дверь и Windows
- .
- Работа с размерами
- Публикация чертежей
- Моделирование и документирование рабочих чертежей
- Обзор 3d
Предварительные условия
- Базовые знания в области гражданского строительства, архитектуры, проектирования интерьеров и планировки
- Загрузите любую старую и последнюю версию ArchiCAD
- Требуйте нашего руководства
Учебное пособие по archicad – ПОЛЬЗОВАТЕЛЬ ARCHICAD
Архив тегов для «учебник по archicad»
Серия советов, опубликованных Graphisoft South Africa, это Совет № 3 в их текущей серии… Горячие ссылки обеспечивают превосходный способ управления повторяющимися структурами в ArchiCAD. Например, если у вас есть ряд похожих структур в одном проекте, вам не нужно редактировать каждую структуру, чтобы добавить, удалить, отразить и т.
д. деталь.
- в Новости ArchiCAD Эрик Бобров
- |
- 4 декабря 2014 г.
Сделайте виды изнутри вашей модели ArchiCAD более естественными, показывая реальное место, когда вы смотрите в окно. Создайте удивительно реалистичный визуальный контекст для вашей модели.
- в Новости ArchiCAD Эрик Бобров
- |
- 30 ноября 2014 г.
В этом разделе я беру вопрос, заданный пользователем, и отвечаю на него либо письменно, либо с помощью видео.
Отправьте свои вопросы по адресу [email protected].
Вы можете отправить мне файл через Dropbox — отправьте ссылку по электронной почте или поделитесь папкой, чтобы отправить несколько файлов.
СЕГОДНЯШНИЙ ВОПРОС ARCHICAD
Сегодняшний вопрос я неоднократно получал от пользователей ArchiCAD:
Как сделать, чтобы маркеры окон и дверей отображались?
По какой-то причине они не отображаются должным образом, хотя я проверил настройки везде, где мог.
ОТВЕТ ARCHICAD
Маркеры окон и дверей устанавливаются в диалоговом окне Настройки окна или двери или в Информационном окне. Они называются «Маркеры размеров» и бывают разных стилей в зависимости от используемой версии ArchiCAD. Некоторые показывают идентификатор элемента внутри круга, шестиугольника, ромба или другой формы; есть и другие, которые показывают размер или размер отверстия.
Маркеры размеров будут видны, если выполняются ВСЕ следующие условия:
1) Слой виден для стены, содержащей окна или двери.
2) Опция просмотра модели (MVO) настроена на отображение маркеров размеров для окон и/или дверей. Настройка MVO записывается как часть настроек представления, поэтому для конкретных представлений могут быть установлены разные параметры представления модели. Это позволяет отображать маркеры на планах этажей в строительной документации, но отключать их на планах потолков, планах мебели и т. д. Активный MVO также можно установить вручную с помощью меню «Документ» > подменю «Параметры представления модели».
3) В проекте ремоделирования в ArchiCAD 15 или более поздних версиях необходимо правильно настроить активный фильтр реконструкции. Например, если для окон или дверей установлен статус «Существующий» (это означает, что они уже существуют и не являются частью нового дизайна), вам нужно будет убедиться, что в фильтре обновления не установлен флажок «Скрыть маркер размера для Существующие элементы. Этот флажок позволяет легко скрывать маркеры для существующих дверей и окон, показывая их для новых; Хотя этот параметр полезен, иногда он может сбивать с толку: «Почему не отображаются маркеры моих окон?!»
4) Стиль маркера размера для каждой двери и окна управляется в настройках двери или окна или в информационном окне. Убедитесь, что маркер размера выбран правильно. Если для него установлено значение «Без маркера», то маркер не будет отображаться. Это полезно для пустых проемов и других окон и дверей, для которых вы не хотите показывать маркер.
Идентификатор (который будет отображаться на плане в маркере, а также в расписании) может быть установлен в разделе «Теги и категории» диалогового окна «Настройки окна или двери» или в информационном поле.
- в Вопросы по ArchiCAD Эрик Бобров
- |
- 12 июня 2014 г.
В этом разделе я беру вопрос, заданный пользователем, и отвечаю на него либо письменно, либо с помощью видео.
Отправьте свои вопросы по адресу [email protected].
Вы можете отправить мне файл через Dropbox — отправьте ссылку по электронной почте или поделитесь папкой, чтобы отправить несколько файлов.
СЕГОДНЯШНИЙ ВОПРОС ПО ARCHICAD
Сегодняшний вопрос я получил от ряда пользователей ArchiCAD в прошлом году – красная дымка или полупрозрачные объемы, которые иногда появляются, когда вы смотрите на свою модель в 3D окно.
Лена Викандер написала:
Я создавала крышу, и когда я переключилась на 3D вид, мое здание окружало розово-красное «призрачное» здание. Я не мог выбрать его. Что это такое и как от него избавиться?
Кэрол Уайли спросила:
Можете ли вы сказать мне, почему моя 3D-модель имеет эту красную ауру? Я не знаю, что я сделал?
ОТВЕТ ARCHICAD
Розово-красный призрак называется Обрезным телом для крыши.
Это включается и выключается с помощью команды «Вид» > «Параметры просмотра на экране» > «Обрезка тел».
Хотя обычно вы не хотите, чтобы тела обрезки отображались, они иногда полезны для проверки и управления крышами в ArchiCAD 15 и более поздних версиях. Каждая крыша может иметь тело обрезки, основанное на контурах (общая протяженность крыши) или осевых линиях (область внутри осевых линий, которые часто устанавливаются вдоль поверхности наружных стен). из двух или более крыш или оболочек можно комбинировать для создания более сложных конфигураций моделирования.0005
Если вам сложно обрезать стены или другие элементы крыши (обрезается слишком много или слишком мало), сделайте обрезные тела видимыми, чтобы вы могли устранять неполадки и настраивать параметры.
- в Вопросы по ArchiCAD Эрик Бобров
- |
- 23 мая 2014 г.
В этом разделе я беру вопрос, заданный пользователем, и отвечаю на него либо письменно, либо с помощью видео.
Отправьте свои вопросы по адресу [email protected].
Вы можете отправить мне файл через Dropbox — отправьте ссылку по электронной почте или поделитесь папкой, чтобы отправить несколько файлов.
СЕГОДНЯШНИЙ ВОПРОС ПО ARCHICAD
Сегодняшний вопрос задает Бен Джекс, новый пользователь ArchiCAD, который проходит мой краткий курс по основам ArchiCAD:
У меня есть вопрос по «очистке стены». Я не уверен, следует ли мне решить эту проблему полностью или оставить ее пока:
У меня толстые внешние стены с опорной линией рядом, но не снаружи стены. У меня более тонкие внутренние стены с опорными линиями, расположенными по центру, а иногда и с одной стороны стены. Стены в конечном итоге будут из совершенно разных материалов (в настоящее время это общие внешние и внутренние стены. Они находятся на разных (внешних и внутренних) слоях стен
Они не уберут. Это перпендикуляр Т. Я пытался использовать «настроить», пересечь, расширить внутреннюю часть вручную внутрь и растянуть ссылку на внутреннюю часть, чтобы коснуться ссылки на внешнюю часть.
В большинстве случаев внутренние линии стен проходят через внешнюю стену и останавливаются на внешней линии.
Мне кажется неудобным обходным путем останавливать внутреннюю стену внутри.
Можете ли вы объяснить, что происходит и что мне делать?
ОТВЕТ ARCHICAD
В стандартном шаблоне Graphisoft для ArchiCAD 17 есть проблема с приоритетами пересечения для общих внутренних и внешних строительных материалов. Внутренняя часть имеет более высокий приоритет, чем внешняя, поэтому, если вы используете эти общие материалы, вы столкнетесь с этой проблемой.
К счастью, это легко исправить. Выберите внутреннюю и внешнюю стены, затем откройте меню «Параметры» > «Атрибуты элемента» > «Строительные материалы». Вы увидите материалы, выделенные зеленым цветом, которые в настоящее время используются выбранными элементами. Нажмите на заголовок «Приоритет» в верхней части списка, чтобы отсортировать по приоритету, а не по имени, затем перетащите материал «Общий внешний вид» под материал «Общий интерьер».
Это заставит ArchiCAD настроить Приоритет пересечения так, чтобы внешний материал был выше, чем внутренний.
Нажмите OK для подтверждения, и когда вы вернетесь к плану этажа, стены будут очищаться так, как вы ожидаете, с внутренними, уступая место внешним, а не полностью.
- в Вопросы по ArchiCAD Эрик Бобров
- |
- 11 мая 2014 г.
- |
В этом разделе я беру вопрос, заданный пользователем, и отвечаю на него либо письменно, либо с помощью видео.
Отправьте свои вопросы по адресу [email protected].
Вы можете отправить мне файл через Dropbox — отправьте ссылку по электронной почте или поделитесь папкой, чтобы отправить несколько файлов.
СЕГОДНЯШНИЙ ВОПРОС по ARCHICAD
Сегодняшний вопрос от Rajagopala Hathwar:
Я столкнулся с проблемой, когда несколько элементов приходят в одном месте и на одном этаже при этом идут на редактирование, выбирая один элемент.
Каково наилучшее решение для свободного выбора отдельного элемента?
ОТВЕТ ARCHICAD
Когда вы наводите курсор на элемент с помощью стрелки выбора, обратите внимание на указание в выделенной области предварительного выбора, что для выбора доступно несколько элементов. Вы увидите, что поле предварительного выбора имеет дополнительное поле «позади» и ссылку на TAB для переключения выбранного элемента.
Нажмите клавишу TAB на клавиатуре (обычно над клавишей CAPS LOCK), и вы увидите, как ArchiCAD выделит и предварительно выберет один из альтернативных элементов под стрелкой. Щелкните стрелкой, когда нужный элемент будет выделен, и этот элемент будет выбран.
- в Вопросы по ArchiCAD Эрик Бобров
- |
- 8 апреля 2014 г.
Сегодня я открываю новый раздел сайта ARCHICAD USER – Вопрос дня по ArchiCAD!
В этом разделе я возьму вопрос, отправленный пользователем, и отвечу на него в письменной форме или с помощью видео.
Присылайте свои вопросы по адресу [email protected].
Вы можете отправить мне файл через Dropbox — отправьте ссылку по электронной почте или поделитесь папкой, чтобы отправить несколько файлов.
СЕГОДНЯШНИЙ ВОПРОС ARCHICAD
Сегодняшний вопрос от Мохамеда Алахмеди:
Здравствуйте, сэр,
Как дела? Я надеюсь, что вы и ваша семья очень хорошо. Более того, так делают все ваши сотрудники. Я в порядке. Большое спасибо, сэр, за ваши постоянные сообщения и помощь. Я получаю от них максимальную пользу.
Сегодня у меня два вопроса?
1- Как обрезать навесные стены по крыше в Archicad (15)?
2- В старых версиях Archicad, таких как (12), я использовал для создания различных форм обычные стены и крыши. Я обрезаю стены до крыш, а затем удаляю крыши, чтобы получить нужные мне формы. Я не могу сделать это в Archicad (15), потому что, когда я удаляю крыши после использования обрезки крыши, стены возвращаются к своей нормальной форме!
Всегда с нетерпением жду вашего ответа.
Искренне ваш
Мохамед Алахмеди
ОТВЕТ ARCHICAD
Вы можете обрезать навесные стены, как и другие элементы, используя команду Connect > Trim Elements to Roof/Shell, или с помощью операции Solid Element Operations (SEO), или с помощью команды Команда «Обрезать до одноплоскостной крыши».
В 3D-окне выберите навесную(ые) стену(и) и крышу(и) и щелкните правой кнопкой мыши, затем выберите «Соединить» > «Обрезать элементы по крыше/оболочке». В диалоговом окне «Обрезать элементы» нажмите «Использовать крыши/оболочки из текущего выбора», затем нажмите «Обрезать». Вы увидите изменение модели. Выбранная навесная стена может показывать сетку схемы, выступающую над крышей, но как только вы отмените выбор, вы увидите ее в окончательном виде.
Вы также можете использовать SEO, установив крышу (крыши) в качестве оператора, навесную стену в качестве цели, с операцией вычитания с выдавливанием вверх.
В обоих этих случаях крышу нельзя удалить, т.
к. к этому элементу подключен Connection или SEO. Если вы не хотите видеть крышу (например, вы просто хотите отрезать верхнюю часть навесной стены или других стен), вы можете просто поместить эту крышу на скрытый слой.
Все еще можно выполнить команду, к которой вы привыкли. Он больше не называется «Обрезать до крыши», теперь он называется «Обрезать до одноплоскостной крыши». Вы должны либо нарисовать крышу с помощью одноплоскостной опции, либо выбрать многоплоскостную крышу (новая опция, представленная в ArchiCAD 15 для создания сложных кровельных систем), щелкнуть правой кнопкой мыши и выбрать «Разделить на одноплоскостные крыши».
Затем вы можете выбрать крышу (крыши) и навесную стену (стены) (а также другие элементы) и щелкнуть правой кнопкой мыши, а затем выбрать «Обрезать до одноплоскостной крыши». Появится диалоговое окно, аналогичное предыдущим версиям ArchiCAD, позволяющее вам обрезать верх (или основание) элемента. Эта обрезка будет полупостоянной — вы можете удалить крышу, и обрезка останется, как и старая команда «Обрезка».
Для навесных стен, если вы хотите отрезать верхнюю часть и НЕ иметь крыши над ней, на самом деле может быть проще просто отредактировать схему. Выберите навесную стену и щелкните ссылку «Редактировать» рядом, затем щелкните глазное яблоко в палитре редактирования навесной стены, чтобы сделать схему видимой. Вы можете отредактировать толстую линию многоугольника, показывающую границу, как и любой стандартный многоугольник, придав ему наклонную, изогнутую или сегментированную вершину или края. Граница схемы определяет крайнюю рамку, поэтому вы можете очень легко создать ее нужной вам формы, не вводя в модель крышу. (В этом смысле он работает намного гибче, чем инструмент стены.)
- в Вопросы по ArchiCAD Эрик Бобров
- |
- 1 апреля 2014 г.
Последняя статья из серии Джареда Бэнкса, посвященная очень важной области ArchiCAD, которой часто уделяется мало внимания. Определенно пища для размышлений, идеи Джареда, возможно, даже немного противоречивы…
- в Учебники ArchiCAD Эрик Бобров
- |
- 28 марта 2014 г.




