9. 4 Выполнение чертежа шпилечного соединения (Лист 6)
Соединение шпилечное применяют, когда в конструкции изделия нет места для головки болта или когда невозможно просверлить сквозное отверстие при значительной толщине детали.
Шпилькой называют цилиндрический стержень с метрической резьбой на обоих концах. Шпильки выпускают по ГОСТ 22032-
76*…ГОСТ 22043-76* с диаметрами резьбы: 3, 4, 5, 6, 8, 10,12, 16, 20, 24, 30, 36, 42, 48.
Соединение шпилечное выполняют следующим образом: в
одной из соединяемых деталей высверливают отверстие для гнезда под шпильку, выполняют фаску, нарезают резьбу. Один конец шпильки, называемый посадочный, ввинчивают в это гнездо, а через другой конец устанавливают присоединяемую деталь и стягивают ее гайкой. Под гайку предварительно помещают шайбу.
ГОСТ 2.315-68* предусматривает упрощенные и условные изображения соединений крепежными деталями на сборочных чертежах. При этом резьба проводится по всей длине стержня резьбовой детали.
Не показывают зазоры между деталями и фаски на гайке и стержне шпильки. На видах, полученных проецированием на плоскость, перпендикулярную оси резьбы, не изображается резьба и шайба. Крепежные детали в разрезах оставляют нерассеченными. В
упрощенных изображениях соединений следует соблюдать пропорции элементов крепежных деталей по условным соотношениям,
зависимым от номинального диаметра резьбы. Упрощенное изображение шпилечного соединения по ГОСТ 2.315-68 приведено на рисунке 35.
Содержание работы:
1 По относительным (расчетным) размерам вычертить два вида
упрощенного шпилечного соединения. На главном виде выполнить фронтальный разрез. Рассчитать и вычертить отверстия для
44
ввинчивания посадочного конца шпильки. Задание выполняется на формате А3.
2 Заполнить спецификацию ГОСТ 2. 108–6.
Рисунок 35 – упрощенное изображение шпилечного соединения
Порядок выполнения работы:
1 Рассчитывается длина шпильки по формуле: l=А+SШ+H+k,
где А – толщина присоединяемой детали,
SШ=0,15×d – высота шайбы,
H=0,8×d – высота гайки,
k=0,3×d – остаток резьбы на стержне болта,
где d – диаметр резьбы шпильки
Посадочный конец для ввинчивания в резьбовое отверстие l1:
45
-для деталей из стали, бронзы, латуни и титановых сплавов l1=d
по ГОСТ 22032-76*;
-для деталей из ковкого и серого чугунов l1=1,25d по ГОСТ
22034-76*;
-для деталей из легких сплавов l1=2d по ГОСТ 22038-76*.
Для выполнения гнезда под шпильку сначала высверливают отверстие диаметром dc=0,85d по ГОСТ 19257-73. Затем делают фаску, нарезают резьбу. Глубина гнезда l2= l1+0,5d. Длина резьбы lр= l1+0,25d.
Пример выполнения задания приведен на рисунке 36. Задания для индивидуального выполнения даны в приложении Г.
Содержание работы:
По заданию преподавателя вычертить рабочие чертежи деталей,
входящие в сборочный чертеж. Для одной из деталей вычертить изометрию с вырезом четверти. Масштаб изображения, а также формат чертежа выбираются самостоятельно. Варианты заданий приведены в приложении Ж.
В обозначении чертежа указывается номер деталировки и номер детали. В основной надписи помещается название детали, в нижней графе основной надписи указывается материал детали, который приведен в описании к сборочному чертежу. Пример выполнения чертежа приведен на рисунке 38.
46
Рисунок 36 – пример выполнения шпилечного соединения (Лист 6)
47
Рисунок 37 – пример выполнения спецификации
48
Соединение деталей шпилькой
Соединение деталей шпилькой
Шпилька — крепежная деталь для разъемного резьбового соединения, представляющая цилиндрический стержень, с резьбой на обоих концах.
Один конец шпильки ввинчивается в одну из соединяемых деталей, а на другой конец устанавливается скрепляемая деталь и навинчивается гайка (рис. 1).
Рис. 1. Шпилька
Резьбовой конец шпильки длиной l1, завинчиваемый в деталь, называется ввинчиваемым концом, а часть шпильки длинной l0, на которую навинчивается гайка — гаечным концом, l – рабочая длина шпильки, l1 зависит от материала присоединяемой детали.
Шпилечные соединения (рис. 2) рекомендуется применять, когда в сборке нет места для размещения болтов либо, когда одна из соединяемых деталей имеет большую толщину и нецелесообразно сверлить глубокие отверстия для установки длинных болтов. Также целесообразно использовать шпилечное соединение для снижения веса конструкции.
Шпилечное соединение состоит из: шпильки, шайбы, гайки и соединяемых деталей. На сборочных конструктивных чертежах шпилечное соединение принято изображать упрощенно. В этом случае используются коэффициенты, устанавливающие зависимость размера элемента крепежной детали от величины диаметра резьбы.
На сборочных чертежах, на чертежах общих и наружных видов крепежные детали изображают в соответствии с ГОСТ 2.315-68.
Рис. 2. Шпилечное соединение
Выбор упрощенного или условного изображения зависит от масштаба чертежа. Если изображение изделия выполнено на чертеже в достаточно крупном масштабе, то применяют упрощенный способ; если же диаметры стержней крепежных деталей на чертеже равны 2 мм и менее, то применяют условный способ.
В том и в другом случае размер изображения должен давать полное представление о характере соединения. Различают конструктивное, упрощенное и условное изображения крепежных деталей и их соединений (рис. 3).
Рис. 3. Изображение шпилечного соединения на чертежах: а — конструктивное упрощенное изображение; б – упрощенное изображение по ГОСТ 2.315-68; в, г – условное изображение в разрезе и на виде
При конструктивном изображении переносимые размеры из стандарта в чертеж точно соответствуют ГОСТ. При упрощенном изображении размеры крепежных деталей определяют по условным соотношениям в зависимости от диаметра резьбы и упрощенно вычерчивают фаски, шлицы и резьбу в глухих отверстиях.
Стоит выделить несколько базовых различий упрощенного изображения от конструктивного соединения:
б) отсутствие фасок на концах стержня шпильки и гайки;
в) не рисуют промежуток между стержнем шпильки и отверстием в сочленяемой детали;
г) линия резьбы изображается только на посадочном конце;
д) не указывается запас резьбы и сверления в нарезаемом части детали.
Шпилька ввертывается чаще всего с помощью двух гаек – гайки и контргайки (рис. 4), поэтому длина нарезки l0 на верхнем конце должна быть такой, чтобы на ней поместились обе гайки, т. е. l0 = 2d + 6 мм.
Рис. 4. Ввертывание шпильки с помощью двух гаек
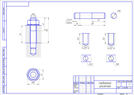
Упрощенное изображение соединения деталей шпилькой вычерчивают по относительным размерам с учетом требований ГОСТ 2.315-68 (рис. 5). В упрощенном изображении шпилечного соединения конец глухого отверстия детали не показывают.
Стяжная длина шпильки L рассчитывается по формуле:
L = Ф + m + S+ a + c,
где Ф – толщина присоединяемой детали;
m – высота гайки;
S – толщина шайбы;
а – запас резьбы;
c – фаска резьбы;
а + с = 0,3d.
Определив расчетную длину шпильки, подбирают по ГОСТ ближайшее стандартное значение Lст в зависимости от диаметра шпильки.
Dr=2d; Dш=2,2d; m=0,8d; S=0,15d
Рис. 5. Упрощенное изображение соединения деталей шпилькой
Пример условного обозначения шпилек в чертежах и спецификации:
Шпилька с диаметром резьбы d=18 мм с крупным шагом 2 мм длиной 100 мм класса прочности 5.8 без покрытия:
Шпилька М18х100.58 ГОСТ22032-76;
то же с мелким шагом 1,25 мм класса прочности 109 из стали марки 40Х с покрытием 02 толщиной 6 мкм:
Шпилька М16х1,25х 120.109.40Х.026 ГОCT22032-76.
Понравилась статья? Хотел вам порекомендовать заглянуть на наш YouTube канал. Так же посмотреть уже готовые проекты на скачивание, среди которых: чертежи, схемы и 3D-модели.
Поделиться статьёй:
- Назад
- Вперёд
поддержка и типы подключения
поддержка и типы подключения
Типы опор и соединений
Структурные системы передают свою нагрузку через ряд элементов
наземь.
Это достигается путем проектирования соединения элементов.
на их пересечениях. Каждое соединение разработано таким образом, что оно может передавать,
или поддержка, определенный тип нагрузки или условия загрузки. Для того, чтобы быть
способный анализировать структуру, прежде всего необходимо иметь четкое представление о
силы, которым можно сопротивляться и которые можно передать на каждом уровне поддержки на протяжении всей
структура. Фактическое поведение поддержки или соединения может быть довольно
сложный. Настолько, что если учесть все различные условия,
проектирование каждой опоры было бы ужасно длительным процессом. И все еще,
условия на каждой из опор сильно влияют на поведение
элементы, из которых состоит каждая структурная система.
Системы из конструкционной стали имеют сварные или болтовые соединения. сборный
железобетонные системы могут быть механически связаны разными способами,
в то время как монолитные системы обычно имеют монолитные соединения. Древесина
системы соединяются гвоздями, болтами, клеем или специальными соединителями.
Независимо от материала, соединение должно быть спроектировано таким образом, чтобы
жесткость. Жесткие, жесткие или неподвижные соединения лежат на одном крайнем пределе
этот спектр и шарнирные или штифтовые соединения связывают друг друга. Жесткий
соединение поддерживает относительный угол между соединенными элементами, в то время как
шарнирное соединение допускает относительное вращение. Есть и связи
в стальных и железобетонных конструктивных системах, в которых частичная жесткость
является желаемой конструктивной особенностью.
ТИПЫ ОПОР
Три общих типа соединений, которые соединяют встроенную конструкцию с ее
фундамент; ролик , штифт и фиксированный . Четвертый
тип, редко встречающийся в строительных конструкциях, известен как простой поддерживать. Это часто идеализируется как поверхность без трения). Все эти
опоры могут располагаться в любом месте вдоль конструктивного элемента. Они найдены
на концах, в середине или в любых других промежуточных точках.
Тип
соединения опор определяет тип нагрузки, которую может выдержать опора.
Тип опоры также оказывает большое влияние на несущую способность конструкции.
каждого элемента, а значит и системы.
На схеме показаны различные способы использования каждого типа поддержки. представлен. Единый унифицированный графический метод для представления каждого из этих типов поддержки не существует. Скорее всего, одно из этих представлений будет похоже на местную обычную практику. Однако каким бы ни было представление, силы, которым может противостоять тип, действительно стандартизированы.
РЕАКЦИИ
Обычно необходимо идеализировать поведение опоры, чтобы
для облегчения анализа. Принят подход, аналогичный безмассовому,
Шкив без трения в домашней задаче по физике. Несмотря на то, что эти шкивы
не существуют, они полезны для изучения определенных вопросов. Таким образом,
трением и массой часто пренебрегают при рассмотрении поведения
связи или поддержки. Важно понимать, что все графические
представления о подставках — это идеализации реальной физической связи.
Диаграмма справа показывает силы и/или моменты, которые «доступен» или активен для каждого типа поддержки. Это ожидаемо что эти репрезентативные силы и моменты, если их правильно рассчитать, будут привести к равновесию в каждом структурном элементе.
ОПОРНЫЕ РОЛИКИ
Роликовые опоры могут свободно вращаться и перемещаться вдоль поверхности при на котором лежит ролик. Поверхность может быть горизонтальной, вертикальной или наклонной под любым углом. Результирующая сила реакции всегда является единственной силой, которая перпендикулярно поверхности и удалено от нее. Роликовые опоры обычно расположен на одном конце длинных мостов. Это позволяет конструкции моста расширяться и сжиматься при изменении температуры. Силы расширения могут ломать опоры у берегов, если конструкция моста была «заперта» на месте.
Роликовые опоры также могут иметь форму резиновых подшипников, коромысла,
или набор шестерен, которые предназначены для обеспечения ограниченного количества боковых
движение.Роликовая опора не может противостоять боковым силам. Представить конструкция (возможно, человек) на роликовых коньках. Остался бы на месте до тех пор, пока структура должна поддерживать только себя и, возможно, совершенно вертикальная нагрузка. Как только боковая нагрузка любого рода давит на конструкцию он откатится в ответ на силу. Боковая нагрузка может быть толчком, порыв ветра или землетрясение. Поскольку большинство конструкций подвергается боковых нагрузок следует, что здание должно иметь другие виды опор в дополнение к роликовым опорам.
ОПОРЫ НА ШТИФТАХ
Опоры на штифтах могут противостоять как вертикальным, так и горизонтальным силам, но не момент. Они позволят элементу конструкции вращаться, но не переводить в любом направлении. Предполагается, что многие соединения являются закрепленными соединениями.

ШТЫРЬЕВЫЕ СОЕДИНЕНИЯ
В отличие от роликовых опор конструктор часто может использовать штифтовые соединения в структурной системе. Это типичная связь, обнаруженная почти в все фермы. Они могут быть артикулированы или скрыты от глаз; они могут быть очень выразительный или тонкий.

Есть иллюстрация одного из элементов Олимпийского стадиона. в Мюнхене ниже. Это соединитель из литой стали, который действует как узел для решения ряд растягивающих усилий. При ближайшем рассмотрении можно заметить, что соединение выполнено из нескольких частей. Каждый кабель подключается к узел концевой «скобой», которая соединена с большим штифтом. Это буквально «закрепленное соединение». Из-за природы геометрии кронштейна и штифта, определенное количество вращательных движений будет разрешено вокруг оси каждого штифта.
Далее следует одно из соединений пирамиды Луавра И.М. Пейя ниже. Обратите внимание, как он также использовал закрепленные соединения.
Закрепленные соединения встречаются ежедневно. Каждый раз, когда распашная дверь
открытое штифтовое соединение позволило вращаться вокруг определенной оси;
и помешал переводу на два. Дверная петля предотвращает вертикальное и горизонтальное
перевод. На самом деле, если достаточный момент не создается
для создания вращения дверь вообще не будет двигаться.
Вы когда-нибудь рассчитывали, сколько времени требуется, чтобы открыть конкретный дверь? Почему одну дверь легче открыть, чем другую?
ФИКСИРОВАННЫЕ ОПОРЫ
Неподвижные опоры могут выдерживать вертикальные и горизонтальные силы, а также момент.
Поскольку они ограничивают как вращение, так и перемещение, они также известны как
жесткие опоры. Это означает, что конструкции требуется только одна фиксированная опора.
чтобы быть стабильным. Все три уравнения равновесия могут быть удовлетворены.
Флагшток, установленный на бетонном основании, является хорошим примером такой поддержки.
Представление неподвижных опор всегда включает две силы (горизонтальную
и вертикально) и момент.
ФИКСИРОВАННЫЕ СОЕДИНЕНИЯ
Фиксированные соединения очень распространены. Стальные конструкции многих размеров состоят
элементов, сваренных между собой. Монолитная бетонная конструкция
автоматически становится монолитным и становится серией жестких соединений
при правильном размещении арматуры.
Спрос на фиксированные соединения
большее внимание во время строительства и часто являются источником строительных
неудачи.
Пусть этот маленький стул проиллюстрирует, как два типа «фиксированных» соединения могут быть созданы. Один сварной, а другой состоит из два винта. Оба считаются фиксированными соединениями из-за того, что что оба они могут противостоять вертикальным и боковым нагрузкам, а также развивать сопротивление моменту. Таким образом, было обнаружено, что не все фиксированные соединения должны быть сварными или монолитными. Пусть петли в точках A и B рассмотреть более подробно.
ПРОСТЫЕ ОПОРЫ
Некоторые идеализируют простые опоры как поверхностные опоры без трения.
Это правильно, поскольку результирующая реакция всегда является единственной.
сила, направленная перпендикулярно поверхности и направленная от нее. Тем не менее,
в этом тоже похожи на роликовые опоры. Они отличаются тем, что простой
опора не может выдерживать боковые нагрузки любой величины.
Созданная реальность
часто зависит от гравитации и трения, чтобы создать минимальное количество трения
устойчивость к умеренным боковым нагрузкам. Например, если положить доску
через зазор, чтобы обеспечить перемычку, предполагается, что планка останется
на своем месте. Он будет делать это до тех пор, пока ногой не ударит его или не сдвинет. В тот момент
доска сдвинется, потому что простое соединение не может создать никакого сопротивления
к латеральному лолу. Простая поддержка может быть найдена как тип поддержки
для длинных мостов или пролетов крыш. Простые опоры часто встречаются в зонах
частой сейсмической активности.
ПОСЛЕДСТВИЯ
Следующие видеоролики иллюстрируют значение типа поддержки условие поведения при изгибе и местонахождения максимального изгиба напряжения балки, опирающейся на ее концы.
Простые балки с петлями слева и роликами справа.
Простые балки с петлями слева и
правильно.
Простые балки, закрепленные с обоих концов.
Вопросы к размышлению
хммм…..
Проблемы с домашним заданием
Дополнительные показания
уточняется
Copyright © 1995 Крис Х. Любкеман и Дональд Peting
Copyright © 1996, 1997, 1998, Крис Х. Любкеман.
19-контактный разъем Socapex Чертежи и схема подключения
Socapex — это тип электрических разъемов, известный в индустрии развлечений в первую очередь 19-контактными электрическими разъемами. Socapex был впервые создан компанией Socapex в 1961, но теперь этот термин часто применяется к аналогичным разъемам других производителей в качестве универсального товарного знака, например Showsafe. Круглые разъемы используются в кино, на телевидении и в сценическом освещении для подключения концов многожильного кабеля. Они соединены шестью контактами под напряжением, шестью нейтральными контактами, шестью контактами заземления и последним центральным контактом, используемым для выравнивания вилочного конца разъема с гнездовой розеткой.
Узнайте больше о разъемах Socapex здесь.
Доступны различные размеры, наиболее распространенными являются 19-контактные круглые разъемы, используемые для осветительных приборов. Разъемы соединяются и фиксируются стопорным кольцом. Типы монтажа кабеля и монтажа на шасси доступны как в форме истока (папа), так и в форме стока (мама). 19-контактный разъем освещения может подключать 6 отдельных цепей сетевого напряжения без общей нейтрали или заземления. В отличие от других разъемов, все цепи независимы, поэтому могут быть на разном оборудовании или фазах, см. схему socapex.
Применение круглых разъемов- Сценическое освещение, диммерные стойки, световые панели
- Соединения управления освещением сцены
- Подъемники и контроллеры
- Другое сценическое оборудование
- Любое другое применение, требующее многополюсного сетевого разъема )
| Circuit Number | Live | Neutral | Earth |
| 1 | Pin 1 | Pin 2 | Pin 13 |
| 2 | Pin 3 | Pin 4 | Pin 14 |
| 3 | Pin 5 | Pin 6 | Pin 15 |
| 4 | Pin 7 | Pin 8 | Pin 16 |
| 5 | Pin 9 | PIN 10 | PIN 17 |
| 6 | PIN 11 | PIN 12 | PIN 18 |
CIN 1 9029