Основная надпись чертежа
ГОСТ 2.104 – 68
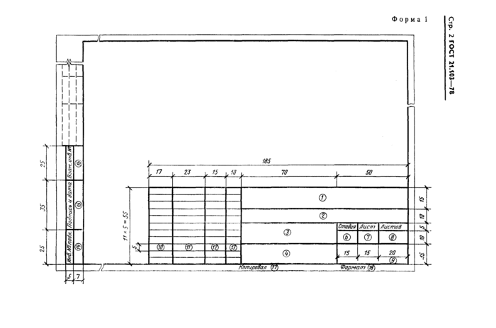
Основная надпись, образующая часть графического документа называемого «чертёж». В основной надписи записываются необходимые сведения такие как: обозначение чертежа, наименование чертежа, информация о предприятии, разработавшем чертёж, вес изделия, масштаб отображаемой детали, стадию разработки, номер листа, дату выпуска чертежа, а так же информацию о лицах ответственных за данный документ. Чертёж без основной надписи не рассматривается, как стандартный элемент документации и не может быть передан в производство. Содержание основной надписи, её расположение и размеры регламентируются стандартом. Графические элементы основной надписи выполняются линиями, предусмотренными для нанесения видимого контура, все остальные линии тонкие.
Основные надписи заглавные и последующие листы
1 – наименование изделия должно соответствовать технической терминологии и излагаться по возможности кратко.
2 – обозначение документа условными письменными знаками.
Обозначение документа состоит из цифр и букв, записанных в определённом порядке. Каждому документу присваивается обозначение, состоящее из знаков, разделённых между собой точками. Индекс изделия может записываться буквами или в цифровом эквиваленте, например:
УЧ-01.10.06.01
или
202.10.06.01
202– индекс установленный разработчиком10– порядковый номер сборочной единицы, входящей в изделие06– номер сборочной единицы01– нумерация деталей
Основная надпись для чертежей и схем
Основная надпись для последующих листов чертежей,
схем и текстовых документов
3 – графа для обозначения материала, из которого изготавливается деталь.
Заполнение ведётся только на чертежах деталей, например:
Сталь 08кп ГОСТ 1050 – 88
4 – здесь пишутся буквы, которые называются «Литера» от латинского слова «littera» что значит – буква. Литера указывает, на какой стадии разработки находится документ:
- П – техническое предложение
- Э – указывает на эскизный проект
- Т – означает, что это технический проект
- О – изготовление опытной партии
- А – скорректированный документ по результатам опытной парти
- Б – эта литера присваивается документу, по результатам изготовления изделия выполненному по чертежу с литерой –
А
Основная надпись заглавного листа
для оформления текстовых документов
5 – Масса изделия – указывается только в цифрах без обозначения измерения.
Указывать единицы измерения допускается в случае, например: 0,25 т, 15 т.
Расчётная масса ставится на чертежах вплоть до технического проекта. Фактическая же масса указывается на документах, начиная с опытной партии. Под фактической массой следует понимать величину определяемую взвешиванием изделия. На чертежах единичных крупногабаритных изделий, массу которых трудно определить механическим взвешиванием, допускается указывать расчётную величину.
Допускается указывать предельные отклонения массы в технических требованиях.
Массу допускается не указывать на чертежах опытных образцов, габаритных и монтажных чертежах.
Расположение основной надписи
на формате листа А4
Расположение основной надписи вдоль длинной стороны
для форматов больше А4
Расположение основной надписи вдоль короткой стороны для форматов больше А4
6 – масштаб графического изображения предмета на чертеже. Масштаб выбирается в зависимости от габаритных параметров изображаемой детали и должно быть вычерчено в натуральную величину или в масштабе.
7 – графа для указания номера листа.
Единичный экземпляр документа не нумеруется.
8 – количество листов в целом.
Число документов указывают только на первом листе.
9 – название предприятия выпустившего документ
10 – дополнительная строка.
Дополнительная строка заполняются разработчиком в зависимости от ситуации, например: «Начальник департамента», «Начальник бюро».
11 – фамилии лиц подписывающих документ.
12 – места для подписей в соответствии с должностными обязанностями.
Документ должен быть подписан как минимум разработчиком и лицом, отвечающим за нормаконтроль в обязательном порядке.
13 – указание даты подписания документа.
14 – 18 – графы предназначены для внесения изменений.
19 – инвентарный номер подлинника.
Для учёта и хранения каждому подлиннику документа присваивается один инвентарный номер, без учёта количества листов.
20 – графа для подписи лица принявшего документ в технический отдел с указанием даты.
21 – дополнительный инвентарный номер подлинника устанавливается взамен предшествующего номера документа при внесёнии в него изменений. Номер первоначального документа сохраняется.
22 – инвентарный номер дубликата.
Вне зависимости от количества листов, дубликатам устанавливается один инвентарный номер и устанавливается на всех листах.
23 – графа для подписи лица принявшего дубликат в технический отдел с указанием даты.
24 – здесь записывается обозначение документа, взамен листа, на котором он был выпущен.
25 – в данной графе указывается документ, где он впервые был записан.
26 – ячейка, в которой указывается шифр обозначения документа, повёрнутый относительно рабочего поля чертежа на 
27 – в данной ячейке устанавливается знак по нормативно-технической документации предоставляемой заказчиком.
28 – номер и дата утверждения документации соответствующей литеры.
29 – номер и дата утверждения документации.
30 – индекс заказчика
31 – копировщик документа
32 – указание формата листа
33 – определение зоны, где находится модифицируемая часть изделия
34 – номер авторского свидетельства на изобретение
1.4. Основная надпись на чертежах
Основную
надпись помещают
в правом нижнем углу чертежа. Формат А4
располагают только вертикально (основная
надпись внизу листа). Форма, размеры и
содержание граф основной надписи
установлены ГОСТ 2.104—68. Основная надпись
на чертежах и схемах должна соответствовать
рис. 1.1, на чертежах по начертательной
геометрии применяется упрощенная форма
надписи рис.
Обозначение изделий и конструкторских документов, выполняемых студентами в основной надписи на учебных чертежах, рекомендуется выполнять в упрощенной форме в соответствии со стандартом предприятия СТП КИСО 07-97 [9].
В графах основной надписи (рис. 1.1 — 1.3 — номера граф обозначены цифрой в кружке) указывают:
в графе 1
Шифр документа
Индекс университета
Шифр специальности
Номер графической (лабораторной) работы
Номер варианта задания
Номер детали
Индекс университета — сокращенное название университета, например КИСО.
Шифр
специальности — например, 071900 «Информационные
системы в технике и технологиях».
Номера графической (лабораторной) работы и варианта выбираются по данному практикуму.
Номер детали должен соответствовать номеру позиции в спецификации.
Шифр документа присваивается в соответствии с требованиями ГОСТ 2.102-68 и ГОСТ 2.701-68. Рабочим чертежам деталей и спецификации шифр не присваивают. Шифр чертежа общего вида — ВО; сборочного чертежа — СБ и т.д.
Например: КИСО. 151001. 931 000 СБ.
В графе 2 на учебных чертежах рекомендуется указывать:
Шифр группы
Индекс кафедры (сокращенное наименование)
№ группы
Например, АСУ, гр. 1.1.
Все чертежи графических и лабораторных работ сопровождаются титульным листом, выполненным по образцу рис. 2.2.
Чертежи, помещенные
как образцы выполнения ГР и ЛР, не
являются эталонами исполнения, а служат
лишь примерами расположения материала
на листе, характеризуют объем и содержание
изученной темы.
Листы чертежей выполненных ГР не складывают, а хранят и представляют на проверку и зачет в папке для черчения форматом А3.
Рис. 1.1. Форма основной надписи на чертежах и схемах
Рис. 1.2. Форма надписи на чертежах по начертательной геометрии
Рис. 1.4. Образец первого листа содержания ПЗ
Рис. 1.5 Образец последующих листов содержания ПЗ
Рис. 1.7 Титульный лист графических работ
(Размеры на чертеже не проставлять)
2. Начертательная геометрия. Задания к графическим работам
2.1.Графическая работа №1 стандарты чертежа. Взаимное положение двух плоскостей
2.1.1. Стандарты чертежа. Титульный лист
(Пример выполнения приведён на рис. 2.1)
Цель
работы: Изучить
основные правила оформления чертежей,
изложенных в стандартах ЕСКД, относящихся
к линиям чертежа и шрифтам чертежным;
получить навыки чертежной работы и
выполнить надписи стандартным чертежным
шрифтом.
Задание
Упражнение 1. Вычертить основные линии, применяемые при обводке чертежей (ГОСТ 2.303-68 — ЕСКД. Линии чертежа).
Упражнение 2. Выполнить шрифтом размером 10 (высота букв в миллиметрах) все прописные и строчные буквы русского алфавита и цифры. Другие размеры шрифта изучить по ГОСТ 2.304—81 -ЕСКД. Шрифты чертежные.
Упражнение 3. Выполнить стандартным чертежным шрифтом титульный лист графических работ.
Понимание надписей на рисунках старых мастеров
Надписи могут раскрыть все, от того, кому ранее принадлежал рисунок, до того, что художник ел на ужин на той неделе, о чем свидетельствует новая выставка в лондонской галерее Курто и наша рисунков старых мастеров распродажа в Нью-Йорке. York, 24 января 2017 г.
Рисунки могут дать особое представление о мыслях их создателей, а также пролить свет на их рабочие процессы, повседневную жизнь и интересы.
Некоторые из наиболее полезных подсказок можно найти в надписях, добавленных к эскизам.
Эти знаки являются предметом выставки Чтение рисунков в лондонской галерее Курто. Собранные работы исследуют интригующее разнообразие надписей, которые можно найти на рисунках, от подписей художников до случайных заметок и записей о праве собственности, а также то, как они могут расширить наше понимание предмета рисунка, его связи с более амбициозной работой или его цель.
Подписи предлагают готовые работы сами по себе, в то время как другие аннотации могут указывать на эксперименты в форме или технике. Такие заметки могут поместить рисунок в карьеру художника или могут быть совершенно не связаны с ним. Тем не менее, они напоминают нам, что чтение рисунков может быть столь же важным, как и другие формы оценки.
Здесь куратор выставки Рэйчел Хапоэну из Института Курто и Фурио Ринальди, специалист по рисункам старых мастеров, рассматривают семь категорий надписей, которые обогащают наше понимание одного из самых интимных жанров искусства.
- 1
- Подписи
Обычай подписывать рисунки стал популярным в конце 15 века, объясняет Ринальди, когда рисовальщики из Северной Европы начали следовать примеру граверов, отмечая свои творения своими инициалами. Подписи были довольно необычны в итальянских рисунках, хотя наша предстоящая распродажа рисунков старых мастеров является исключительным случаем авторства и самосознания для женщины-художницы начала 17 века, Джованны Гарцони. Она с гордостью подписала две гуаши, заказанные семьей Медичи. «Это превосходные примеры ее выдающихся способностей в создании репродуктивных миниатюр», — замечает Ринальди.
Джованна Гарцони (Асколи 1600-1670 Рим), Святой Иоанн Креститель в пустыне, После Рафаэля .
Следы черного мела, краски для тела и гуммиарабика на пергаменте, лежащие на панели, 6⅝ x 8½ дюйма (16,8 x 21,6 см), овальной формы. 24 января 2017 года продано на аукционе Christie’s в Нью-Йорке за 75 000 долларов США за рисунки старых мастеров
Джованна Гардзони (Асколи 1600-1670 Рим), Мария Магдалина в пустыне, по Орацио Джентилески . Следы черного мела, краски для тела и гуммиарабика на пергаменте, лежащие на панели, 6⅝ x 8½ дюйма (16,8 x 21,6 см), овальной формы. 24 января 2017 года продано на аукционе Christie’s в Нью-Йорке
за 75 000 долларов за рисунки старых мастеров.
- 2
- Происхождение
Имена, написанные на рисунках, не всегда являются подписями художника, но также могут быть атрибуциями, добавленными более поздними владельцами.
«Такие дополнения не всегда правильны и могут ввести ученых в заблуждение», — предупреждает Рэйчел Хапоэну, хотя и добавляет, что иногда такие надписи могут помочь в определении происхождения. На одной из работ выставки «Чтение рисунков» итальянского художника XVIII века Франческо Симонини имя художника написано почерком коллекционера, чьи атрибуции считаются настолько точными, что ученые называют его «Надежная венецианская рука». . «Идентификация его почерка позволяет нам поместить этот рисунок в Венецию в 18 веке, что дает важную информацию», — говорит Хапоэну.
Франческо Симонини (Парма 1686-ок. 1755 Венеция), Воющий пес , ок. 1730-1750 гг. Предоставлено галереей Курто
- 3
- Право собственности
Когда между 15 и 16 веками сложилась практика коллекционирования рисунков, коллекционеры обычно вклеивали их в альбомы, часто снабжая их инвентарными номерами или штампами с инициалами.
Отец Себастьяно Реста с необычайным пристрастием к работам начала 15-го и 16-го веков был одним из самых важных знатоков итальянских рисунков 17-го века. «Листы из его коллекции можно узнать по букве, за которой следуют цифры, написанные мелким шрифтом прямо на рисунке», — говорит Ринальди. «Одним из примеров на январском аукционе является этюд скульптора и архитектора эпохи Возрождения Рафаэлло да Монтелупо, который Реста приписал Микеланджело».0005
Рафаэлло да Монтелупо (Монтелупо Фьорентино 1504-1566 Орвието), Лист этюдов, включая астрологические часы, голову бородатого мужчины, стоящие обнаженные тела и архитектурные детали . Перо и коричневые чернила, верхняя правая часть готова, 6⅜ x 8⅞ дюймов (16,2 x 22,5 см). Продано за 27 500 долларов за рисунки старых мастеров 24 января 2017 года на Christie’s в Нью-Йорке
.
- 4
- Время, место и предмет
Помимо атрибуции, надписи могут связывать рисунки с другими, тем самым помогая нам лучше понять их цель и место в карьере художника.
В январе 2017 Рисунки старых мастеров продается, этюд для Колесница заходящего солнца генуэзского мастера Луки Камбьязо снабжен аннотацией внизу, выполненной чернилами, аналогичными композиции, «Sole cadente» (Заходящее солнце). Этот лист соответствует рисунку такого же размера, найденному в Метрополитен-музее в Нью-Йорке, с аналогичной пометкой, предположительно Камбьязо, «Sole oriente», чтобы указать на колесницу, изображающую восход солнца на востоке.
Лука Камбьязо (Монелья 1527-1585 Мадрид), Колесница заходящего солнца . Перо и коричневые чернила, коричневая заливка, круг водяного знака, увенчанный крестом с инициалом М, 8½ x 11⅞ дюймов (21,6 x 30,2 см). Продано за 15 000 долларов за рисунки старых мастеров 24 января 2017 года на Christie’s в Нью-Йорке
.
- 5
- Осветительная техника
Заметки, сделанные художниками в процессе рисования, могут многое рассказать об их методах работы.
На выставке Курто рисунок Вильфранш-сюр-Мер на Французской Ривьере Эдварда Лира, художника и поэта XIX века, содержит дату и время, а также пронумерован, что предполагает несколько исследований одной и той же сцены.
Эдвард Лир (Холлоуэй, 1812–1888, Сан-Ремо, Италия), Этюд Вильфранш-сюр-Мер . Предоставлено галереей Курто
«Должно быть, он работал быстро и на открытом воздухе, — говорит Рейчел Хапоэну, — поскольку он только делал наброски топографии, добавляя фонетические примечания, записывая цвет и другие особенности ландшафта». Лир пробежался по своим графитным заметкам пером, добавив акварель в соответствии с его предыдущими инструкциями.
- 6
- Связь с другими работами
Будучи прямым выражением оригинальных идей и замыслов художника, рисунки часто сопровождаются аннотациями с информацией о предмете и размерах холста или панели, которые будут использоваться.
В распродаже рисунков старых мастеров энергичный лист этюдов Вольтеррано относится к одному из его самых важных заказов, монументальному Успение Богородицы Фреска на куполе церкви Сантиссима Аннунциата во Флоренции. «Ранее этот лист считался этюдом к его более раннему Коронации Богородицы в церкви Санта-Кроче, — объясняет Ринальди, — но аннотации автографов, относящиеся к ‘iudit’ , идентифицируют его как этюд для Юдифи, фигуры это появляется только на его фреске Santissima Annunziata».
Бальдассаре Франческини, Иль Вольтеррано (Вольтерра, 1611–1690, Флоренция), Лист этюдов: Коронация Богородицы, Юдифь с головой Олоферна и Бог-Отец, с двумя дополнительными этюдами Бога-Отца для коронации . Красный мел, перо и коричневые чернила, 10⅝ x 15⅝ дюйма (27 x 39,6 см). 24 января 2017 года продано на аукционе Christie’s в Нью-Йорке
за 17 500 долларов за рисунки старых мастеров.
- 7
- Несвязанные надписи
Хапоэну говорит, что надписи, не связанные с соседними рисунками, интригуют сами по себе, поскольку они позволяют заглянуть в повседневную жизнь художников. Рисунок на выставке Курто, приписываемый художнику в мастерской Рафаэля, может изображать Александра Великого со своим врачом.
Мастерская Рафаэля (Урбино 1483-1520 Рим; ранее приписывался Перино дель Вага), Александр Македонский пьет свое лекарство , c. 1520-е гг. Предоставлено галереей Курто
Над головами рисунков находится список дней и соответствующих съеденных продуктов, начиная с «Воскресный вечерний колбасный хлеб и салат».
Бумаги было мало в мастерских эпохи Возрождения, где рисунки были просто эскизами для других проектов, а не ценными произведениями искусства сами по себе. «Запись «пищевого дневника», вероятно, знакома многим людям сегодня, — говорит Хапоэну, — и, таким образом, предлагает современному посетителю музея связь с первым владельцем этого листа».
Войти Сейчас
Нанесение надписей с путями > Западно-семитский исследовательский проект > Колледж литературы, искусств и наук имени Даны и Дэвида Дорнсайфов Университета Южной Калифорнии образ текста. Рисунок ВСЕГДА делается на другом слое или серии слоев, чтобы рисунок можно было изменить без потери исходных данных фотографии. Слой подобен прозрачной пленке, помещенной поверх фотографии: все, что делается с прозрачностью, оставляет исходную фотографию нетронутой.
Первый пример, представленный здесь, — высеченная надпись — буквы, высеченные на камне.
Один из способов рисования символов в надписях этого типа — рисовать «корешок» буквы, а не ее контур. Затем «корешок» можно «погладить» кистью или карандашом до толщины разреза.
При рисовании букв на прочерченной надписи лучше всего использовать изображения, сделанные при контрастном освещении. Обычно мы делаем наши рисунки, по крайней мере, с двумя изображениями на экране. Буква будет нарисована на одном изображении и скопирована на другое, чтобы на обоих (или на всех) изображениях были совпадающие рисунки. В следующем примере мы будем предполагать, что используются два изображения, размер которых соответствует друг другу.
1. Откройте изображения в двух размерах, сделанные с контрастным освещением, и увеличьте масштаб области, которую нужно нарисовать.
2. В окне «Слой» щелкните стрелку вправо и выберите «Новый слой». Дайте слою имя и нажмите «ОК».
Теперь ваш рисунок должен выполняться с новым выбранным слоем. Вы можете нарисовать все свои буквы на одном слое рисования или добавить слой для каждой буквы.
Однако слои увеличивают размер файла, поэтому убедитесь, что у вас достаточно памяти для размещения больших файлов.
3. В окне «Пути» щелкните стрелку вправо и выберите «Новый путь». Назовите путь и нажмите «ОК».
Путь будет представлять собой серию точек, которые вы выбрали, чтобы обвести или нарисовать букву. Компьютер автоматически соединяет точки, что-то вроде рисунка точка за точкой.
4. Выберите инструмент «Перо». Вы начнете рисовать с помощью основного инструмента «Перо» (#1). Проследите букву, щелкнув несколько точек (называемых «опорными точками») вдоль корешка буквы. Используйте как можно меньше точек для плавной линии (только четыре точки использовались для создания пути ниже). Компьютер автоматически соединит точки. Сначала контур будет выглядеть довольно грубо, но есть и другие инструменты, которые можно использовать для более точного формирования контура.
С помощью инструмента Преобразовать точку создайте руль и измените кривую пути.
5.